9082 141st St, Seminole, FL 33776
Toggle Navigation
Images
Floor Plans
3D Tour
Map
9082 141st St
Seminole, FL 33776
Scroll to Content
Images
Slideshow
Photo Grid
Hide
Previous
Next
Show more
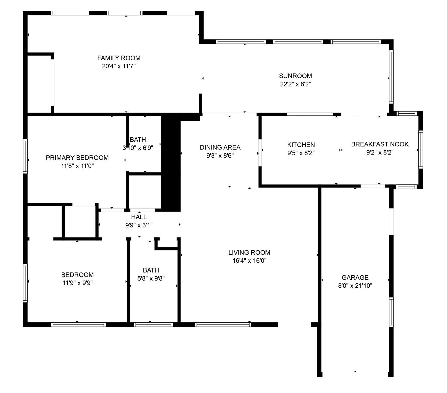
Floor Plans
Slideshow
Photo Grid
Hide
Previous
Next
3D Tour